八叉树工具箱
八叉树结构出图工具箱介绍
基于Revit的结构出图工具箱,提升结构施工图生成效率
产品介绍
八叉树结构出图工具箱是由深圳八叉树科技有限公司研发的基于Revit的结构出图工具箱。 用户先用Revit软件建立好结构模型,然后用八叉树出图工具箱生成结构施工图。
下载八叉树Revit插件和AutoCAD插件,立即试用八叉树工具箱
主要功能
1.1 自动生成构件标记
一键生成梁、柱等构件的标记。对构件做修改后,点击刷新即可更新标记。

对于不同种类的图纸,提供相应的标记模板。只需指定标记模板,即可自动生成相应的标记。

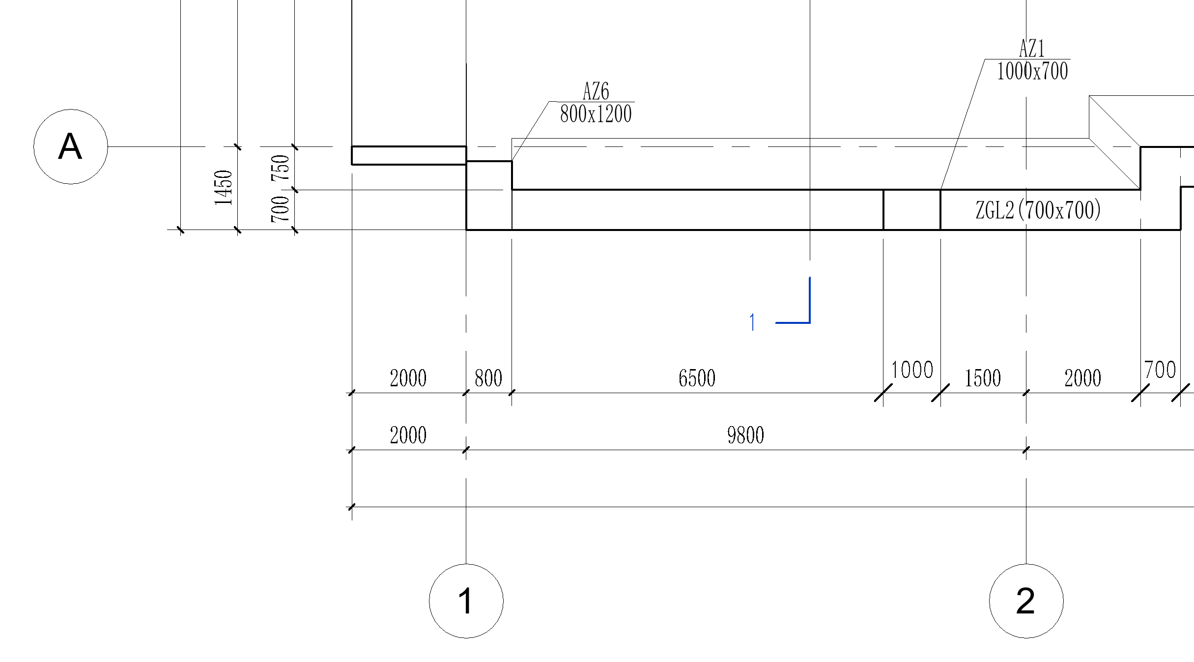
1.2 自动标注尺寸
自动生成顶部、底部、左侧、右侧多道尺寸标注。

对于不同种类的图纸,提供相应的尺寸标注模板。只需指定尺寸标注模板,即可自动生成相应的尺寸标注。
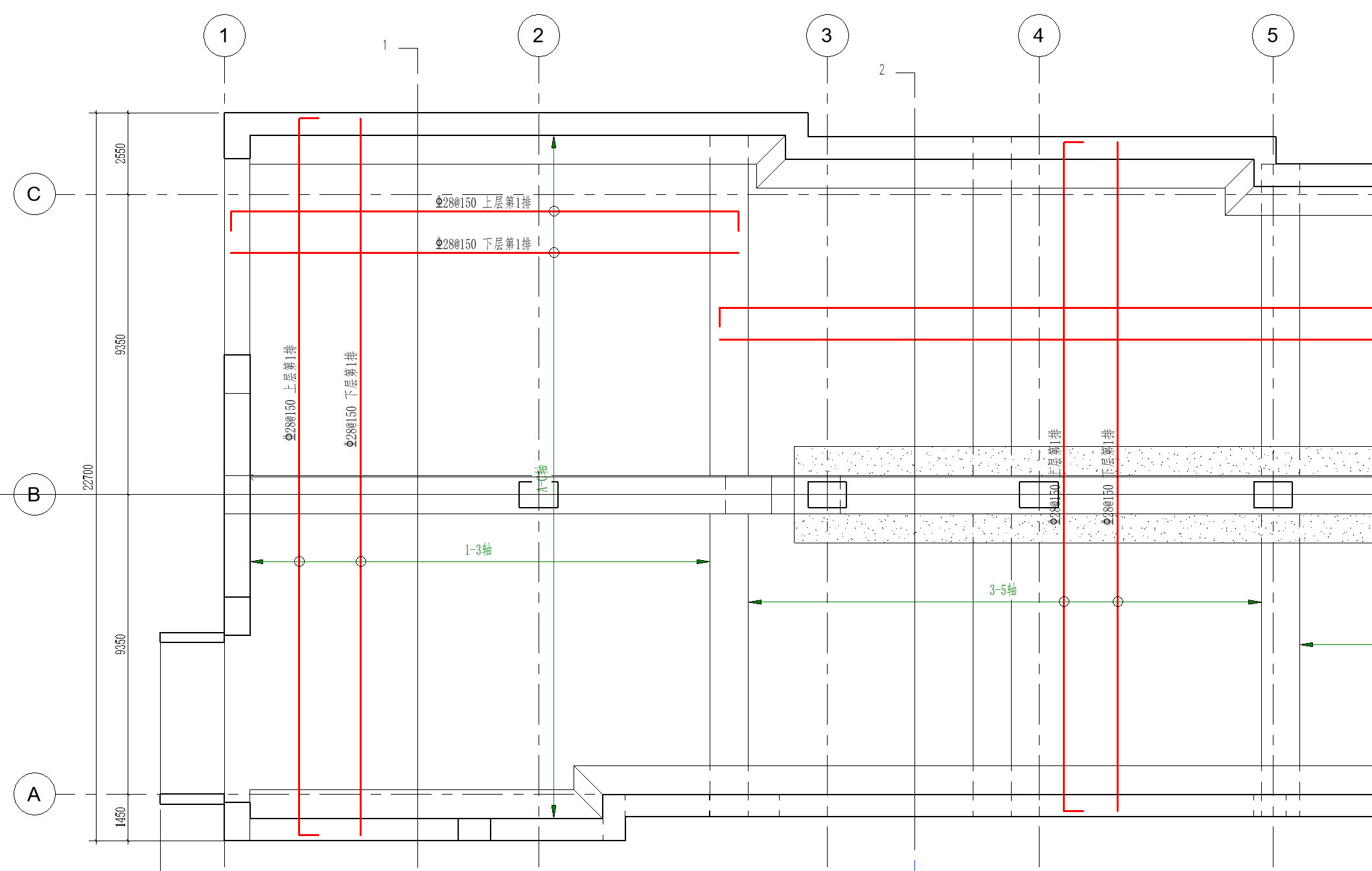
1.3 自动调整轴网
根据图纸中结构轮廓线条和尺寸标注的位置,一键自动调整轴线长度和轴线编号位置。
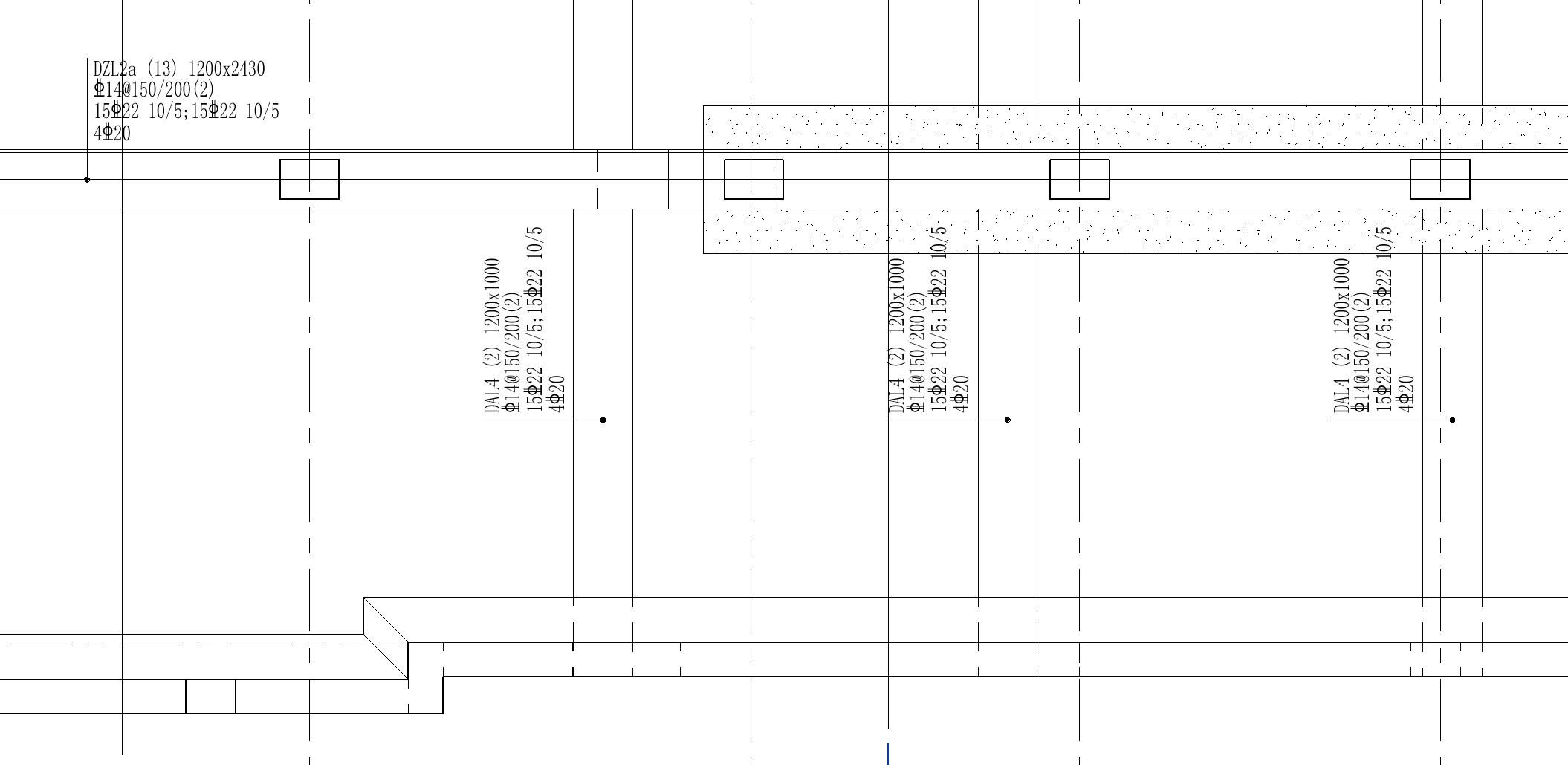
1.4 自动生成梁平法配筋图
用默认的梁配筋数据生成梁平法配筋图,用户可进行梁支座调整、梁配筋编辑等多种操作。


1.5 绘制板平法配筋图
提供板底钢筋、板底局部筋、板顶通长筋、板顶局部筋、板配筋编辑等多种工具,可轻松绘制板平法配筋图。

1.6 自动生成构件表格
自动生成构件表格,表头、表内容、顺序均可配置。


1.7 一键开图
按照预设的一整套图纸的典型目录,指定相应的视图,自动生成整套图纸。

立即体验八叉树结构出图工具箱
联系我们,获取产品试用和详细资料
